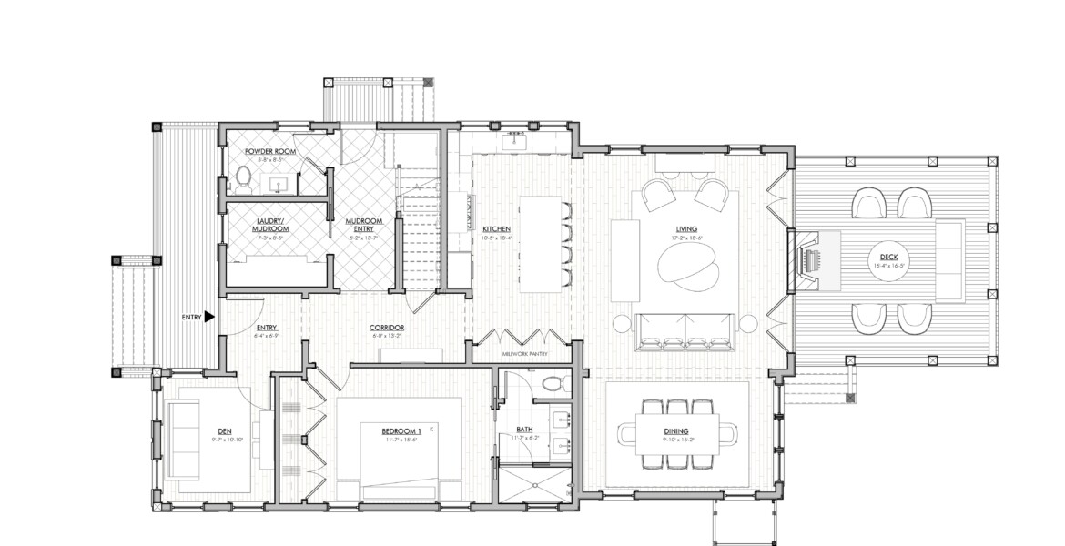
Step through the inviting covered porch and to your right into a light-filled den, perfect for movie nights or game days. Adjacent to the den, you'll find the first-floor bedroom with an en suite bathroom, complete with dual vanities. To the left of the entryway is a convenient mudroom, also accessible from the side entrance, a laundry room, a powder room, and a staircase leading to the second level. Continue down the main hallway to the expansive open-plan living area, starting with a gourmet kitchen that boasts a large island and pantry. Beyond the kitchen, the spacious living area features two sets of doors that open to the exterior deck, creating a seamless indoor-outdoor living experience. The dining area, bathed in natural light, is tucked to the right.





























